Save Yourself: 5 Reasons to Hire an Interior Designer


It is all too often that we hear clients are overwhelmed by the project they are about to embark on—whether it is a remodel, new build, or pulling together furnishings for their home. There is a lot that goes into a project and we are here to help…and make it fun while doing it! Below are our top 5 reasons why it is worth hiring an interior designer.


1. No Regrets

Our job is to present our clients with viable options. We want you to have the opportunity to consider what works best for you, your family, and your lifestyle. As you make this large investment in your home, we want you to feel secure in knowing you are making the right decision. You have considered all the options, evaluated the choices, and have confidence moving forward in the desired direction.

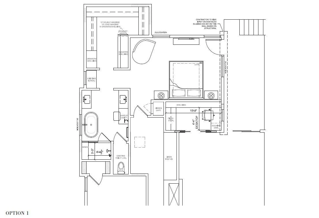
A diagram showing a home plan (option 1) with office, bedroom, and bathroom.

Studying placement of bed and office arrangements. Keeping toilet placement consistent with as-built.

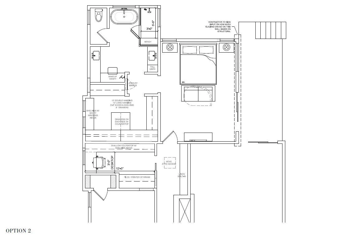
A diagram showing a home plan (option 2) with office, bedroom, and bathroom.

Studying alternative locations for bathroom and orientation of bed in room.

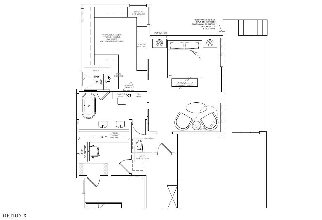
A diagram showing a home plan (option 3)with office, bedroom, and bathroom.

Studying less invasive alterations to keep costs and engineering at a minimum.


2. Cost Savings

Our goal is to make your investment in our design services worthwhile. We understand the expense of bringing a designer on to your project. That is why we believe our services can pay for themselves. This is achieved in three ways.

First, by designing your room or home in entirety during the design process, it eliminates the risk of last-minute changes or costly mistakes during construction. If all decisions and details have been thoroughly thought out, there is a lower chance of incurring expensive change orders. Here’s a simple example: if you have selected your beautiful light fixture and know the exact placement beforehand (i.e.: how high, where on the wall or ceiling it is being mounted, how it relates to other architectural elements in the room, etc.), your electrician can install with no questions asked. Their time is minimized. There are no return trips to the site, drywall patching, and re-painting from having to move it. This simple example can be multiplied to other design elements going into a space (finishes, plumbing, cabinetry, etc.).

The second way a designer can help save money is by making selections based on budget allowances. There are a lot of beautiful and amazing products that homeowners can often get distracted by. However, if the budget is part of a project, a designer will know pricing, ease of installation, and other components that play a role in pricing. We can help steer the design to reflect not only your style and design tastes, but also your budget restraints as well.

Lastly, our documentation will allow contractors to get accurate bids and multiple bids. Each person bidding will have the same documentation and the comparison will be fair and telling. You will understand the expenses involved and can form the team necessary to accomplish the tasks required for your project.

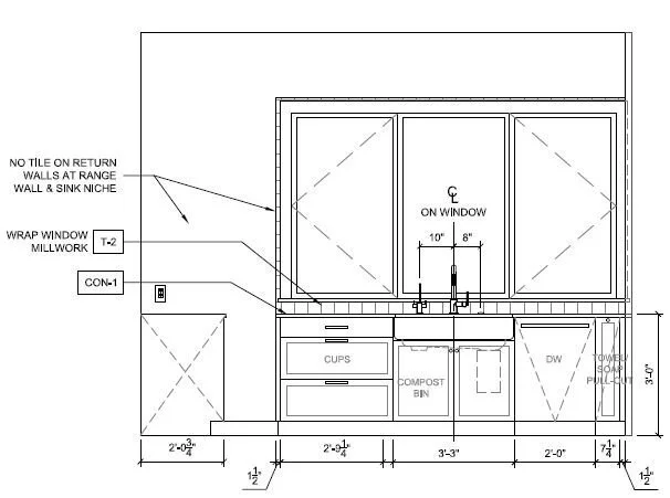
A guest suite bathroom elevation.

Example elevation that dictates lighting placement for ease of coordination/installation with the electrician.


3. Visual and Technical Communication

Sometimes it is difficult for a homeowner to communicate a general look or desired outcome to a tradesperson or general contractor. A designer will have the skill-set to help complete this task. This is accomplished with plans, specifications, renderings, details, and other visual and technical documentation. The last thing you want is for something to look “kind-of” like you wanted.

Fireplace detail calling out specific needs to ensure all design details are captured

A schedule of light fixtures for an interior design project.

Lighting schedule outlining important information for client/contractor/trades to reference


4. All in the Details

From a bird’s eye view, a project may look easy to complete. But once you dig in, you may realize the amount of time and details it will take to complete each task is overwhelming. For something as simple as selecting a sofa, you’ll need to think about height and depth, cushion and fill, textile properties for maintenance and durability, welt and stitch details, leg stain finishes, etc. Or, if you are remodeling or building a new home, what will it take to get your dream plumbing fixtures at your sink location in your new kitchen? You’ll need to think about sink type and material, installation method, cabinet capacity, type of faucet, and plumbing/electrical requirements that may go along with it. Are you considering a garbage disposal, hot water faucet/tank, and soap dispenser? How do these items get arranged in relationship to the sink? What impact do they have on countertop fabrication and backsplash tile? You can start to see that one decision can have a domino effect on other decisions. A designer is here to help you keep your sanity and answer those questions for you.

A kitchen plan showing millwork and other design details.

Kitchen sink elevation depicting placement, spacing, and product selections.

A selection of interior design materials.

Kitchen/dining palette showing the mix of materials and how each selection works well with the overall palette.


5. Cohesive Look

At GHID we are experts in our field. We have years of education, experience, and knowledge that allows us to visualize and pull together a project so it reads cohesive and complete. We can pull together existing spaces with new spaces and think holistically about a complete home. We can create harmony and balance within your home while infusing it with your personal style. When you embark on this journey, it is critical to make it all feel right. Below are photos of several different rooms from a new build project. Each room is unique, but you can tell they are from the same house and have a thread of consistency running through each of them.

A luxurious living room with fireplace and chandelier.
A large fireplace with accent chairs.
A primary bedroom with large chandelier and settee.
A kitchen bath with custom tile and light fixtures.


Previous
Previous

Modernism Week 2025

Next
Next

Studio Garrison’s Top 5 Utility Rooms